Trong bối cảnh ngành F&B ngày càng cạnh tranh, mô hình nhà hàng sân vườn trở thành lựa chọn được nhiều doanh nghiệp ưa chuộng. Tất cả là nhờ vào không gian thoáng đãng, gắn liền với thiên nhiên. Do đó, bản vẽ nhà hàng sân vườn chi tiết giúp chủ đầu tư hình dung tổng thể kiến trúc, quyết định cách vận hành kinh doanh một cách hiệu quả.
Vai trò của bản vẽ nhà hàng sân vườn
Nhiều chủ đầu tư thường nóng lòng bắt tay vào thi công ngay khi đã có ý tưởng về nhà hàng sân vườn. Thế nhưng, nếu bỏ qua bước lập bản vẽ, công trình rất dễ phát sinh sai sót, tốn kém và thiếu đồng bộ. Vậy bản vẽ đóng vai trò gì trong việc biến ý tưởng thành không gian thực tế?
- Định hình phong cách thiết kế: Mỗi nhà hàng sân vườn có thể được phát triển theo phong cách hiện đại, cổ điển, Á Đông hay tối giản. Bản vẽ là công cụ trực quan giúp thể hiện rõ lựa chọn này, tạo sự thống nhất giữa chủ đầu tư và đơn vị thi công ngay từ giai đoạn đầu, tránh mâu thuẫn hoặc sai lệch trong quá trình thực hiện.
- Tối ưu chi phí và tiến độ: Một bản vẽ chi tiết thường đi kèm với dự toán vật liệu, nhân công và kế hoạch thời gian. Điều này giúp hạn chế các sai sót, giảm thiểu chi phí phát sinh và tránh việc chỉnh sửa nhiều lần. Nhờ đó, công trình được triển khai trơn tru, đúng tiến độ, tiết kiệm cả thời gian lẫn nguồn lực.
- Nâng cao trải nghiệm khách hàng: Không gian nhà hàng sân vườn không chỉ để thưởng thức ẩm thực mà còn để thư giãn. Bản vẽ giúp sắp xếp bố cục hợp lý. Qua đó, nhà hàng mang lại cảm giác dễ chịu, nâng cao mức độ hài lòng và khuyến khích thực khách quay lại.

Các loại bản vẽ nhà hàng sân vườn
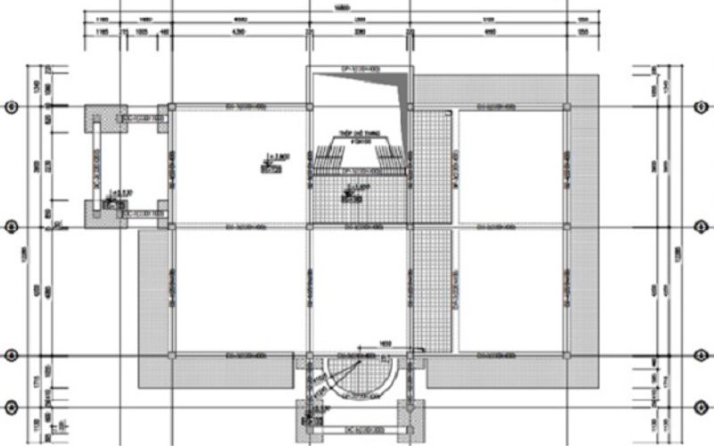
1. Bản vẽ kiến trúc
Trong thiết kế nhà hàng sân vườn, bản vẽ kiến trúc là nền tảng quan trọng giúp chủ đầu tư và đơn vị thi công nắm bắt tổng thể không gian. Đồng thời, bản vẽ này còn giúp định hình phong cách và công năng sử dụng.
Một bản vẽ hoàn chỉnh thường bao gồm các phần chính sau:
- Mặt bằng tổng thể: Thể hiện cách bố trí các khu vực chức năng (sảnh chờ, khu ăn uống, bếp, nhà vệ sinh, bãi đỗ xe và tiểu cảnh). Đây là cơ sở để đảm bảo sự tiện lợi cho khách hàng và tối ưu luồng di chuyển.
- Mặt đứng: Minh họa mặt tiền và phong cách kiến trúc của công trình từ hiện đại, cổ điển đến tối giản. Yếu tố này giúp hình dung diện mạo tổng thể và tạo ấn tượng ban đầu cho khách đến nhà hàng.
- Mặt cắt: Cho phép quan sát cấu trúc từng tầng, chiều cao và sự phân chia không gian. Đây là phần quan trọng để kiểm soát yếu tố kỹ thuật và đảm bảo công trình đúng tiêu chuẩn.
👉 Ví dụ thực tế: Một nhà hàng sân vườn rộng 500m² tại TP.HCM thường được chia thành ba khu chính: sảnh đón tiếp, khu tiệc ngoài trời và khu ăn uống trong nhà. Đặc biệt, khu ăn uống thường sử dụng hệ thống kính cường lực lớn để mở rộng tầm nhìn, giúp thực khách kết nối gần gũi hơn với cảnh quan thiên nhiên.

2. Bản vẽ kết cấu
Nếu bản vẽ kiến trúc giúp hình dung diện mạo, không gian nhà hàng, thì bản vẽ kết cấu lại là “xương sống” quyết định độ an toàn và độ bền của công trình. Đây là phần không thể thiếu trong quá trình thiết kế – thi công, đặc biệt với những công trình phục vụ số lượng khách lớn.
- Các hạng mục chính: Bản vẽ kết cấu thể hiện móng, dầm, cột và sàn chịu lực. Tất cả đều được tính toán kỹ lưỡng nhằm đảm bảo sự ổn định, hạn chế rủi ro trong quá trình sử dụng.
- Đảm bảo an toàn: Với đặc thù nhà hàng thường xuyên đón tiếp đông khách, hệ thống kết cấu phải chịu được tải trọng lớn. Đồng thời duy trì cảm giác chắc chắn, an tâm cho cả nhân viên và thực khách.
- Giải pháp cho công trình lớn: Đối với nhà hàng có diện tích từ 1.000m² trở lên, kết cấu mái và khung chịu lực bằng thép tiền chế thường được áp dụng. Phương án này vừa giúp tiết kiệm chi phí xây dựng, vừa đảm bảo độ bền, dễ dàng mở rộng hoặc cải tạo trong tương lai.
👉 Ví dụ thực tế: Một nhà hàng sân vườn rộng 1.200m² tại Bình Dương đã lựa chọn hệ khung thép tiền chế cho toàn bộ khu vực sảnh tiệc. Nhờ thiết kế không gian mở, mái che rộng tới hàng chục mét nhưng không cần nhiều cột chống, khu vực này vừa thoáng đãng vừa linh hoạt trong việc sắp xếp bàn tiệc, phù hợp cho các sự kiện đông người.

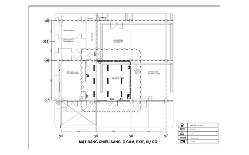
3. Bản vẽ hệ thống
Bản vẽ hệ thống là phần quan trọng giúp công trình vận hành trơn tru và đáp ứng trải nghiệm của khách hàng. Một bản vẽ đủ điều kiện bao gồm nhiều hạng mục kỹ thuật từ điện, nước cho đến thông gió \ đến điều hòa. Tất cả đều cần được tính toán hợp lý ngay từ đầu để tránh phát sinh chi phí sửa chữa sau này.
- Hệ thống điện: Bản vẽ chỉ rõ cách bố trí đèn trang trí ngoài trời, hệ thống chiếu sáng lối đi và đường dây phục vụ cho khu bếp. Việc thiết kế hợp lý không chỉ tạo sự an toàn mà còn góp phần làm nổi bật không gian cảnh quan và phong cách của nhà hàng.
- Hệ thống nước: Bao gồm đường ống cấp thoát nước, hệ thống xử lý tại khu vệ sinh, khu bếp và đặc biệt là hệ thống tưới cây tự động cho tiểu cảnh, giúp duy trì không gian xanh mát quanh năm.
- Thông gió và điều hòa: Đây là yếu tố giúp không gian luôn thoáng đãng, giảm thiểu mùi thức ăn ám vào khu vực ăn uống, đồng thời tạo sự thoải mái cho thực khách khi dùng bữa trong cả không gian kín lẫn mở.
👉 Ví dụ thực tế: Một nhà hàng sân vườn 600m² tại Hà Nội đã thiết kế hệ thống đèn LED âm sàn dọc lối đi kết hợp đèn thả ở khu vực ngoài trời, vừa tiết kiệm điện năng vừa tạo hiệu ứng lung linh vào buổi tối. Đồng thời, hệ thống tưới nhỏ giọt tự động được lắp đặt quanh khu tiểu cảnh, giúp tiết kiệm công chăm sóc và duy trì cảnh quan luôn xanh tươi.

4. Bản vẽ cảnh quan
Đối với nhà hàng sân vườn, cảnh quan chính là “linh hồn” tạo nên sự khác biệt so với các mô hình ẩm thực thông thường. Một bản vẽ cảnh quan khoa học không chỉ mang tính thẩm mỹ mà còn đảm bảo công năng sử dụng, giúp khách hàng có trải nghiệm trọn vẹn hơn.
- Cây xanh và tiểu cảnh: Việc bố trí cây xanh, thảm cỏ, hồ nước hay thác nước nhân tạo đều được thể hiện rõ trong bản vẽ. Những yếu tố này mang lại sự mát mẻ, gần gũi với thiên nhiên, đồng thời nâng cao giá trị thẩm mỹ cho không gian.
- Lối đi nội bộ: Bản vẽ cũng xác định rõ lối đi cho khách và nhân viên. Điều này đảm bảo sự thuận tiện trong di chuyển, tránh chồng chéo, tạo cảm giác không thoải mái cho thực khách.
- Khu check-in và sự kiện: Trong xu hướng hiện nay, khu vực check-in, sân khấu nhỏ hoặc không gian tổ chức tiệc ngoài trời là điểm nhấn quan trọng. Bản vẽ cảnh quan giúp bố trí hợp lý các khu này, vừa thuận tiện vừa gia tăng tính trải nghiệm.
👉 Ví dụ thực tế: Một nhà hàng sân vườn 800m² tại Đà Nẵng đã tận dụng diện tích trung tâm để thiết kế hồ nước kết hợp thác tràn nhân tạo, bao quanh là các tiểu cảnh xanh. Lối đi lát đá được chia riêng biệt cho khách và nhân viên, tạo sự gọn gàng. Ngoài ra, một khu sân cỏ rộng gần 200m² được quy hoạch làm nơi tổ chức tiệc cưới và sự kiện, đồng thời là điểm check-in hấp dẫn cho khách trẻ.

Các mẫu bản vẽ nhà hàng sân vườn theo quy mô
Nhà hàng sân vườn nhỏ (dưới 300m²)
Đối với những chủ đầu tư có nguồn vốn hạn chế hoặc muốn thử nghiệm mô hình kinh doanh F&B, nhà hàng sân vườn quy mô nhỏ là lựa chọn đáng cân nhắc. Dù diện tích không quá rộng, nhưng nếu biết cách thiết kế, không gian vẫn có thể tạo được dấu ấn riêng.
- Ưu điểm: Chi phí đầu tư thấp, phù hợp cho mô hình quán cà phê kết hợp ẩm thực nhẹ. Quy mô nhỏ giúp việc quản lý nhân sự, vận hành và bảo trì trở nên đơn giản hơn.
- Nhược điểm: Số lượng bàn ghế hạn chế, khó đáp ứng nhu cầu tổ chức tiệc lớn hoặc sự kiện đông người. Chủ đầu tư cần cân nhắc kỹ đối tượng khách hàng mục tiêu để tránh lãng phí không gian.
- Điểm nhấn trong bản vẽ: Thay vì đầu tư vào hạng mục cảnh quan cầu kỳ, nhà hàng nhỏ thường tận dụng tiểu cảnh đơn giản như giàn hoa, chậu cây xanh, hồ cá mini hay thác nước nhỏ. Những chi tiết này vừa tiết kiệm chi phí, vừa giúp không gian trở nên gần gũi và thư giãn.

Nhà hàng sân vườn trung bình (300–700m²)
Với diện tích vừa phải, nhà hàng sân vườn trung bình được xem là lựa chọn “an toàn” cho nhiều chủ đầu tư, bởi nó cân bằng được cả chi phí đầu tư lẫn không gian trải nghiệm của khách hàng. Đây là mô hình phổ biến ở đô thị và các khu du lịch.
- Ưu điểm: Chi phí đầu tư hợp lý so với diện tích sử dụng. Nhà hàng vẫn đủ rộng để tạo không gian thoáng đãng, mang lại trải nghiệm thư giãn cho khách. Đồng thời, quy mô này thích hợp để tổ chức các bữa tiệc nhỏ như sinh nhật, họp mặt gia đình hoặc tiệc công ty quy mô hạn chế.
- Nhược điểm: Dù có ưu thế về diện tích so với mô hình nhỏ, nhưng nhà hàng trung bình vẫn khó đáp ứng những sự kiện lớn có hàng trăm khách. Chủ đầu tư cần khéo léo trong thiết kế để không gian vừa đẹp mắt vừa tiện dụng.
- Điểm nhấn trong bản vẽ: Ở quy mô này, bản vẽ thường có thêm hồ cá koi tạo yếu tố phong thủy, cùng khu tiệc ngoài trời được bố trí linh hoạt. Sự kết hợp giữa cảnh quan thiên nhiên và không gian ăn uống giúp nhà hàng trở thành điểm hẹn lý tưởng cho các buổi sum họp.

Nhà hàng sân vườn lớn (trên 1.000m²)
Với diện tích rộng, nhà hàng sân vườn lớn mang đến nhiều cơ hội khai thác kinh doanh nhờ khả năng phục vụ đa dạng nhu cầu khách hàng, từ ăn uống thường nhật đến các sự kiện quy mô lớn. Tuy nhiên, để tối ưu không gian và công năng, bản vẽ thiết kế cho mô hình này thường phức tạp và đòi hỏi sự tính toán tỉ mỉ.
- Ưu điểm: Không gian rộng rãi, có thể chia thành nhiều khu vực khác nhau để phục vụ nhiều nhóm khách cùng lúc. Đây cũng là mô hình phù hợp để tổ chức tiệc cưới, hội nghị, hội thảo hay sự kiện đông người với hàng trăm khách tham dự.
- Nhược điểm: Chi phí đầu tư, thi công và vận hành cao hơn nhiều so với mô hình nhỏ và trung bình. Ngoài ra, việc quản lý nhân sự, bảo trì cảnh quan và duy trì dịch vụ đòi hỏi hệ thống tổ chức chuyên nghiệp.
- Điểm nhấn trong bản vẽ: Ở quy mô này, bản vẽ thường bao gồm đại sảnh rộng, nhiều khu ăn uống trong nhà và ngoài trời, sân khấu tổ chức sự kiện hoặc tiệc cưới. Cảnh quan cũng đa dạng hơn, với cây xanh lớn tạo bóng mát, hồ nước trang trí, thác nhân tạo và thậm chí cả khu vui chơi trẻ em để phục vụ khách gia đình.

Xu hướng thiết kế bản vẽ nhà hàng sân vườn năm 2025
Năm 2025, thiết kế nhà hàng sân vườn không chỉ tập trung vào thẩm mỹ mà còn hướng đến sự bền vững, thân thiện với môi trường và trải nghiệm trọn vẹn cho khách hàng. Những xu hướng nổi bật có thể kể đến:
- Không gian mở: Tăng sự kết nối giữa nội thất và ngoại thất bằng vách kính trong suốt hoặc cửa trượt lớn, giúp khách vừa thưởng thức món ăn vừa tận hưởng cảnh quan.
- Thiên nhiên là trung tâm: Vật liệu tự nhiên như gỗ, đá, tre, trúc được ưu tiên để tạo cảm giác gần gũi và thân thiện với môi trường.
- Ứng dụng công nghệ xanh: Tích hợp hệ thống tưới nước tự động, đèn năng lượng mặt trời hay cảm biến tiết kiệm điện để giảm chi phí vận hành và bảo vệ môi trường.
- Yếu tố phong thủy: Chú trọng thiết kế lối vào rộng rãi, hồ nước đặt ở phía trước, cây xanh bố trí cân đối để tạo cảm giác hài hòa và thu hút tài lộc.
- Không gian đa trải nghiệm: Ngoài khu vực ăn uống, bản vẽ thường bổ sung thêm khu check-in, sân khấu mini cho sự kiện nhỏ hoặc khu BBQ để tăng sự gắn kết và giải trí.
- Thiết kế tối giản – tinh tế: Giảm bớt chi tiết rườm rà, tập trung vào ánh sáng, cây xanh và các mảng không gian thoáng đãng nhằm tạo phong cách sang trọng nhưng gần gũi.

Chi phí thiết kế và thi công
Khi lên kế hoạch xây dựng nhà hàng sân vườn, chi phí là yếu tố mà mọi chủ đầu tư đều quan tâm. Mức giá cụ thể phụ thuộc vào nhiều yếu tố khác nhau, từ quy mô công trình cho đến phong cách thiết kế và chất lượng vật liệu sử dụng.
- Diện tích: Đây là yếu tố quan trọng nhất. Nhà hàng có diện tích càng lớn thì chi phí càng tăng theo cấp số nhân, không chỉ vì khối lượng vật liệu nhiều hơn mà còn do yêu cầu về kết cấu, hệ thống và cảnh quan phức tạp hơn.
- Phong cách thiết kế: Nhà hàng mang phong cách cổ điển thường đắt đỏ hơn do cần nhiều chi tiết cầu kỳ và vật liệu cao cấp. Trong khi đó, phong cách hiện đại – tối giản giúp tiết kiệm đáng kể chi phí nhờ sử dụng đường nét gọn gàng và vật liệu công nghiệp.
- Vật liệu: Gỗ tự nhiên, kính cường lực, đá granite hay tre trúc thường có giá thành cao hơn các vật liệu công nghiệp thông thường, nhưng đổi lại mang đến vẻ đẹp bền vững và sang trọng.
- Đơn vị thiết kế: Chi phí thiết kế bản vẽ dao động từ 150.000 đến 300.000 đồng / m² tùy thuộc vào uy tín và kinh nghiệm của công ty. Các đơn vị chuyên nghiệp thường đi kèm dịch vụ tư vấn, giám sát và cam kết chất lượng.
👉 Tham khảo chi phí thực tế:
- Nhà hàng nhỏ 200m²: Khoảng 200 – 400 triệu đồng.
- Nhà hàng trung bình 500m²: Từ 700 triệu đến 1,2 tỷ đồng.
- Nhà hàng lớn 1.000m²: Tối thiểu 2 tỷ đồng trở lên, tùy mức độ đầu tư vào cảnh quan và nội thất.

Lưu ý khi triển khai bản vẽ nhà hàng sân vườn
Một bản vẽ chỉ thực sự hiệu quả khi quá trình triển khai được tính toán cẩn trọng và phù hợp với thực tế. Để đảm bảo nhà hàng sân vườn vừa đẹp mắt vừa vận hành trơn tru, chủ đầu tư cần chú ý những điểm sau:
- Khảo sát địa hình và khí hậu địa phương: Đây là cơ sở để chọn giải pháp móng, thoát nước và thiết kế cảnh quan phù hợp, tránh rủi ro ngập úng hay xuống cấp nhanh.
- Chọn đơn vị thiết kế – thi công có kinh nghiệm F&B: Không chỉ am hiểu về kiến trúc, họ còn biết cách bố trí bếp, kho, lối đi và khu phục vụ tối ưu cho vận hành.
- Lập kế hoạch ngân sách rõ ràng: Ngoài chi phí xây dựng ban đầu, cần tính đến bảo trì cảnh quan, hệ thống tưới, chiếu sáng và nội thất để vận hành lâu dài.
- Đảm bảo tiêu chuẩn an toàn: Hệ thống PCCC, điện, nước phải được thiết kế đúng quy chuẩn để vừa an toàn cho khách, vừa tránh rủi ro pháp lý.
- Yếu tố phong thủy: Bố trí lối vào, hồ nước, cây xanh hợp phong thủy không chỉ tạo không gian hài hòa mà còn được xem là yếu tố mang lại may mắn và thu hút khách hàng.

FAQ – Câu hỏi thường gặp
Bản vẽ nhà hàng sân vườn thường bao gồm những hạng mục nào?
→ Thông thường sẽ có 4 nhóm chính: bản vẽ kiến trúc (mặt bằng, mặt đứng, mặt cắt), bản vẽ kết cấu (móng, dầm, cột, mái), bản vẽ hệ thống (điện, nước, thông gió, điều hòa), và bản vẽ cảnh quan (cây xanh, hồ nước, lối đi, khu check-in).
Có cần thuê đơn vị chuyên nghiệp thiết kế bản vẽ không?
→ Nên thuê. Nhà hàng sân vườn không chỉ yêu cầu về thẩm mỹ mà còn liên quan đến an toàn kết cấu, công năng vận hành F&B, cũng như tuân thủ các tiêu chuẩn pháp lý (PCCC, điện – nước).
Thời gian thiết kế và thi công mất bao lâu?
→ Tùy quy mô. Với nhà hàng nhỏ, tổng thời gian có thể từ 2–3 tháng, trong khi nhà hàng trung bình hoặc lớn thường kéo dài 4–6 tháng, gồm cả giai đoạn xin phép xây dựng, hoàn thiện nội thất và cảnh quan.
Chi phí thiết kế bản vẽ dao động thế nào?
→ Đơn giá trung bình hiện nay khoảng 150.000 – 300.000 VNĐ/m². Tổng chi phí phụ thuộc vào diện tích, phong cách kiến trúc và mức độ phức tạp của công trình.
Nhà hàng sân vườn có cần chú trọng yếu tố phong thủy không?
→ Có. Nhiều chủ đầu tư tin rằng việc bố trí lối vào, hồ nước, cây xanh và không gian mở theo phong thủy không chỉ tạo cảm giác hài hòa mà còn giúp thu hút khách hàng, mang lại may mắn trong kinh doanh.
Có thể cải tạo bản vẽ nhà hàng sân vườn cũ không?
→ Hoàn toàn có thể. Các giải pháp thường dùng là bổ sung tiểu cảnh xanh, cải tạo hệ thống ánh sáng để tăng không khí ấm cúng, hoặc mở rộng không gian ngoài trời nhằm nâng cao trải nghiệm khách hàng.
Kết luận
Một bản vẽ nhà hàng sân vườn không chỉ là bản phác thảo kỹ thuật mà còn là kim chỉ nam giúp chủ đầu tư thành công. Nó định hình phong cách, tối ưu chi phí, đảm bảo công năng, đồng thời nâng cao trải nghiệm khách hàng. Trong xu hướng 2025, những bản vẽ kết hợp thiên nhiên, công nghệ xanh và phong thủy hài hòa chắc chắn sẽ trở thành lựa chọn ưu tiên, mang lại lợi thế cạnh tranh cho nhà hàng.
Xem thêm:

